MF生料均化库
销售热线: (0)189 0627 1888 联系人: 胡先生 传真: 0513-8844 8088
一、 概述
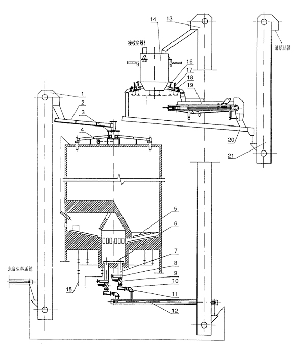
MF生料均化库采用分配器和六根斜槽呈辐射状卸入库内,基本形成水平料层,库底是锥形,略向中心顷斜,中部有一中心混合室,中心室与库壁之间的库底分为6-14个充气区,每区设3条充气斜槽和1个卸料孔,卸料时向两相对区轮流充气,在卸料口上方出现多股漏斗凹陷,漏斗沿直径排成一列,随充气的交换而旋转角度,这样不但产生重力混合,而且生料从库底卸入中心室后,中心室底部连续充气,使生料又获一次均化,由于这种库的均化原理是以料流漏斗重力混合为主要手段,所以电耗极省,能耗仅为0.432-0.576kwh/t,均化值可达7-10,该系统具有高效节能,基建投资低和操作管理简便等优点。
二、 MF生料均化库技术参数表
|
序号 |
名称 |
规格 |
数量 |
备注 |
|
1 |
提升机 |
|
|
工艺定 |
|
2 |
空气输送斜槽 |
|
|
工艺定 |
|
3 |
库顶分料器 |
Φ1250mm |
1台 |
工艺定 |
|
4 |
风机 |
13m3/min 19.6kPa |
1台 |
|
|
5 |
外充气槽系统 |
|
1套 |
工艺定 |
|
6 |
中心室充气槽系统 |
|
1套 |
工艺定 |
|
7 |
出料口 |
200mm |
2套 |
|
|
8 |
闸板截流阀 |
310×310mm |
2台 |
|
|
9 |
气动回转阀 |
200mm |
2台 |
|
|
10 |
排料槽 |
315mm |
2台 |
|
|
11 |
电动流量控制阀 |
Φ250mm |
2台 |
|
|
12 |
链运机 |
|
|
工艺定 |
|
13 |
提升机 |
|
|
工艺定 |
|
14 |
计量仓 |
Φ4000mm |
1套 |
|
|
15 |
库底管道系统 |
|
1套 |
工艺定 |
|
16 |
充气式螺旋闸门 |
B300 |
2台 |
|
|
17 |
气动开关阀、气动切断阀、大流量粉体关断阀 |
B300 |
2台 |
|
|
18 |
电动流量阀 |
B300 |
2台 |
|
|
19 |
密闭式生料计量喂料机 |
DEM-F1000×3200 |
1台 |
|
|
20 |
空气输送斜槽 |
|
|
工艺定 |
|
21 |
提升机 |
|
|
工艺定 |

上一页:[均化系列]
下一页:回转式空气分配器
产品别名:


















